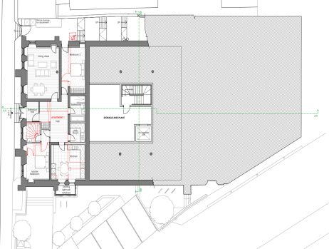
Old South Church, Coldswell Road, Crieff, PH7 4BB

Back to Articles 1 April 2025 1 minute read

Share this post